
Et lille pusterum fra en hektisk hverdag
Calamandrana
Huset ligger i en lille kommune, der hedder Calamandrana. Den tætteste by med shopping af stort set det meste, er Canelli. Canelli ligger 4 km fra huset.
Det nemmeste er, at flyve til Torino eller Milano (Malpensa). Torino er ca 1 1/2 time fra huset, og Malpensa er 1 time og 45 min væk. Bergamo ligger ca. 2 timer og 20 min fra huset.
Det er super fine veje man kører på, ingen smalle hårnålesving. Det er kun det sidste lille stykke op til huset, der er ret smalt og stejlt.


Plantegning
Plantegning af stueplan.
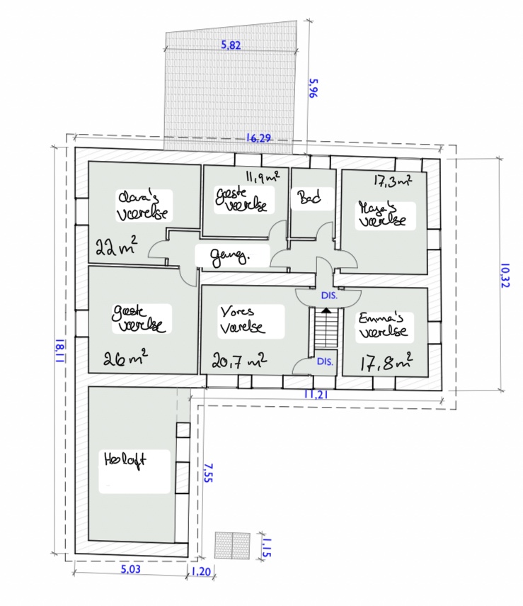
Plantegning
Plantegning af 1. Sal


Huset.
Meget rødt udenpå og endnu mere orange inden i.
Vi drømmer om, at fjerne det lille udhæng, for at sætte en altan på i stedet for. Der skal være udgang fra begge værelser til denne altan. Den skal gå helt hen til Laden, så man kan gå ind på det gamle høloft, som skal laves om til en skøn aftenterrasse.
Se mere her: Huset
Bagsiden af huset
Bagsiden af huset, hvor indkørslen er. Der er en carport med plads til 2 biler. Denne var ikke blevet oplyst til kommunen, og skulle derfor tinglyses. Støttemuren til carporten står på vinbondens grund, så det skulle der også hentes tilladelse til.
En af grundene til det tog lidt tid, før vi kunne få lov til, at skrive under på skødet.
Se mere her: Bagsiden af huset


Udsigten
Udsigten kan være svær at få øje på. Den er skjult godt bag hæk og træer, der vokser på skrænten. Vi er dog sikre på, at udsigten er der, når vi får fjernet en del af beplantningen. Vi skal først købe lidt af naboens jord, for at sikre den gode udsigt hele vejen, da vi kun ejer halvdelen af skrænten.
Se mere om arbejdet med udsigten her Udsigten
Vores lille bakke bag huset
Temmelig stejl og der er kun et par frugt træer. Pt. bruges den ikke til noget, men når der bliver åbnet op for udsigten bliver det helt fantastisk herfra, så bakketoppen skal indtages på et tidspunkt og udsigen herfra skal nydes.
Vi er begyndt at fjerne lidt efeu og planen er at komme igang med denne del i foråret 2023.
Se Bakkens udvikling her: Vores lille bakke bag huset


Bakketoppen og bagsiden af laden.
Bagside af laden. Masser af rød puds, som ikke er så pæn mere. Her rammer aftensolen, så den skal vi have ind på den aftenterrasse vi vil lave på det gamle høloft. På forsiden af laden er der ikke puds på. Det tænker vi også at fjerne på resten af laden, så det kun er selve huset, der er pudset. Der skal åbnes op med 1 flot bue foroven, måske også forneden.
Bakketoppen skal indtages og udsigten nydes.
Forhaven
Forenden af den 100 meter lange indkørsel, kommer man til en stor jernlåge. En dag får Mads en elektrisk låge. – når man kommer ind ad lågen, er der til højre en dejlig carport til to biler. Kigger man lige frem vil man blive mødt af den skønneste udsigt, så snart hæk og krat er blevet ryddet.
Her skal skal poolen bygges – en infinity pool i hjørnet med udsigt over dalen – hvor der er sol fra morgen til aften.
Se mere her: Forhaven


Den gamle lade.
Den gamle lade var brugt til overdækket terrasse og brændeskur. Den underste del af laden strækker sig ind under 1/3 del af 1 salen i husets bredde. Her var brænde fra gulv til loft, så vi havde slet ikke en fornemmelse af størrelsen og vi havde ikke set vinduerne indefra i laden. Den øverste del, er lukket og man kan kun komme derop via en lille jernstige på huset. Det er det gamle høloft og det bruges ikke til noget.
Overvejelserne er, at vi skal åbne helt eller delvist op på den anden side også, for at få aftensolen ind. Vi venter lidt og ser hvad der giver mening. Der er allerede en dør, der fører ud til bagsiden af laden og vores lille bakketop.
Følg med i laden her. Laden
Ladens 1. sal
Laden 1. sal kan kun nåes via en lille jernstige foran huset. Jeanette drømmer om, at få åbnet op til bagsiden af laden, så man kan sidde her og nyde aftensolen. Der skal sættes dobbeltdør i det ene værelse, der vil få direkte adgang til terrassen. Den drøm er nu ved at blive til virkelighed.
følg med i forvandlingen her: Høloftet


Indgangsparti
Det er et typipisk Piemonte hus, hvor man træder ind i huset lige ved trappen til 1. salen. Når man kommer ind ad døren, kan man gå til højre ud i køkkenet, eller til venstre ind i stuen.
Stuen
Stuen med de fine buede lofter, meget orange vægge og pink gardiner.
Vi har endelig fået lavet en del i stuen. Det har taget sin tid, da vi opdagede, at der var blevet fjernet en bærende væg på et tidspunkt. Det skulle lige fixes. Der skulle “bare” lige sættes et lille H-jern ind i væggen i den ene side og understøttes i den anden med en lille søjle. Det var for ikke nok efter ingeniørens beregninger, og pludselig stod vi med rigtig meget jern i stuen.
Hvad gør man så, når det ikke helt spiller sammen med planerne om indretning. Man må se rummet på en anden måde. Vores arkitekt anbefalede at bygge en box omkring jernet for at skjule det. Det har vi valgt ikke at gøre. Vi har valgt at lade det være en del af charmen og historien. Jernet er rustent, industrielt og faktisk også lidt rustikt at se på. Det beholder vi fremme. Til gengæld har vi valgt at følge arkitektens anbefaling om, at male rummet bag jernet en anden farve, for at skabe et rum i i rummet.
Læs om hele processen her. Stuen


Køkkenet
I Italien er det almindeligt at køkkenet ikke indgår i hushandlen, så det var helt tomt da vi overtog.
Vægge blev pudset og spartlet og malet.
Køkkenet er blevet bygget op i multiplader, spartlet og malet. Skuffer er fra Ikea. Fronterne er lavet af dampet eg, fra Hvalsø savværk.
Følg med i køkken her. Køkken
Køkken
Fra køkkenet, kan man gå ud i en lille baggang. her kan man komme til badeværelset i stueplan og til fyrrummet.


Opbevaring
Når man går ud i den lille baggang, går man lige forbi et opbevaringsrum under trappen. Det skal vi have lavet til en butlers bar.
Baggang
Den lille gang bag køkkenet er placeret i den tidligere lade/stald. det er nu inddraget til bolig og fører til bad og toilet i stueplan, samt til fyrrummet, som har direkte udgang til haven.
Se mere her: Baggang


Bad og toilet i stueplan.
I stueplan i en del af den gamle lade, finder vi et nyere badeværelse. Det var helt charme forladt, og ikke godkendt, men fungerer især imens vi renoverer. Det har en dejlig str. Vi overvejer at udvide det en smule mere, men vi må lige se hvor omfattende det er.
Vi har valgt at male det og sætte nye møbler ind – det giver en bedre følelse.
Badeværelset kan blive godkendt ved opførsel af ventilation eller et større vindue. Det bliver ventilation…. Loftet burde ha været højere, men der kan gives dispensation for dette. Noget af det ejerne skulle have på plads, derfor tog det ekstra tid, før vi kunne skrive under på huset.
Fyrrummet
Det eneste rum ud over badeværelset i stueplan, der ikke er orange.
Til gengæld er der sort af sod. de tidligere ejere har fyret med brænde og det har sat sine spor. Et rum der skal bruges til opbevaring.
Se mere her: Fyrrummet


1. salen
Den typiske piedmontese trappe fører til et badeværelse fra 70’erne og 6 soveværelser.
Se mere her: Trappen
Værelse nr. 1
1 værelse på højrehånd er et dejligt stort soveværelse. Der er et mørkt parketgulv på lige nu, da fliserne under er skulle være temmelig ødelagt. Trægulvet skal af og nye fliser skal på. Værelset er en del af det oprindelige hovedhus. Vi undre os over, at der ikke er buer i loftet. Måske de er gemt.
Se mere her.Værelse nr. 1


Værelse nr. 2
Værelset til venstre forenden af trappen. endnu et dejlig stort værelse, som altid har været en del af hovedhuset. Her der der buede lofter. Drømmen er at få fjernet maling og puds, så man kan se de smukke sten, men det kommer an på tid og penge.
Emmas værelse – malet og indtil videre sparsomt møbleret.
Se mere her: Værelse nr.2
Bad og toilet på 1. sal.
Et bad og toilet som vist let kan dateres tilbage til 70’erne.
Da badeværelset er gammelt, skal det laves og alle rør skal skiftes, så vi ikke pludselig står med en vandskade pga gamle rør.
Vi er der startet med at male det, så vi kan vente lidt med at lave det.
Se mere her Badeværelse 1 sal


Værelse nr. 3
På den ene side af badeværelset er endnu et stort værelse. Også her har de lagt parketgulv. Det skal skiftes. og det skal fliserne også, der ligger under parketgulvet.
Dette er Majas værelse. Vi har malet -Maja har malet om 😂
Se mere her: Værelse nr. 3
Værelse nr. 4
På den anden side af badeværelset, er husets mindste værelse på 12m2.
Det skal være et gæsteværelse.
Det er et rigtig hyggeligt værelse. Når jeanette er alene i huset foretrækker hun at sove her. Det er ikke så stort, at være alene i.
Se mere her: Værelse nr.4


Værelse nr. 5
Dette værelse er ikke godkendt til beboelse. Det blev etableret i den gamle lade i 2006. for at få det godkendt, skal vi hæve loftet med 20-30 cm, samt sætte større vinduer i. Lofthøjden er den samme som i resten af huset. men kravene var anderledes i 2006. Måske det bare forbliver et depotrum på papiret.
Læs mere her: Værelse nr. 5
Værelse nr. 6
Det sidste soveværelse er som værelse nr. 6, er heller ikke godkendt. Det er et skønt stort værelse, som skal have en dobbeltdør ud til ladens 1 sal.
Se mere her: Værelse nr. 6


Gang
Fordelings gangen på 1. sal. Alle på nær de to ikke godkendte værelser og det lille gæsteværelse har de gamle trædøre. Vi skal ud og finde nogle gamle døre, efterhånden som vi renoverer de forskellige værelser.
Se mere her: Gang
Masser af farve
Ikke nok med at væggene er orange. Vi har også blå kontakter.
Væggene er ikke kønne. Pudsen er noget de kalder plastico, og er ikke diffusions åbent. Vores arkitekt anbefaler det kommer af, og laves om. så vi kan desværre ikke “bare” spartle ovenpå.
Vi starter med at male 1. salen hvid og flytter ind i den, med plastico på væggene og blå kontakter. Så renoverer vi stueplan som det første. Vi skal lave køkken som det allerførste.
Når stueplan er færdig, renoverer vi et værelse ad gangen. Vi skal jo også holde ferie ;0)


Gulvene
Der findes 5 forskellige slags fliser og sågar parket gulve i huset. Efterhånden som vi får istandsat rummene, skal der lægges nye terracotta gulve overalt på 1. salen. Hvis Jeanette får sin vilje, skal der lægges et mønstret gulv i badeværelserne og i noget af køkkenet. Stueplan tænker vi, skal have betongulv, da vi har de buede murstenslofter. Fliser kunne måske forvirre øjet for meget… nu må vi se, hvad vi ender med, når vi først kommer igang
Video omkring huset
Ejeren har sendt video af at de nu officielt er fraflyttet huset.
Video af stueplan
Video af stueplan …. Uden køkken. Vi var lidt spændte på, om de nu havde taget det med, eller om det bare var et forsøg på at få lidt flere penge.
Video af 1 salen
En lille rundvisning på 1 salen.